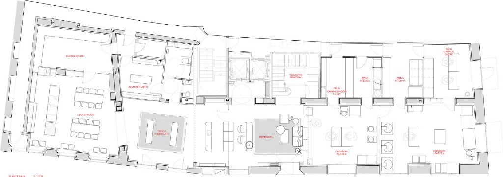
Casa Cacao, is the new boutique hotel with a chocolate preparation room founded by the Roca del Celler brothers of Can Roca. SANDRA TARRUELLA INTERIORISTAS has been in charge of the interior design project. The project is based on the intention of having the chocolate preparation room visible from the street level, from where guests can learn about the whole process of making chocolate. From the handling of cocoa sacks, until its completion with the wrapping of chocolates, tablets or other elaborations.
On the ground floor there is the preparation room, the hotel entrance, a chocolate shop and a product packaging and tasting room. The suites are located on the upper floors, and on the rooftop level, there is a landscaped terrace overlooking the old city quarters, where breakfast is served.
Design: Sandra Tarruella Interioristas















